Let’s get you home
Altadena families deserve a better path home. That need is what drove us to develop our award-winning, fire-resistant custom homes, designed and factory-built right here in Los Angeles.
Recognized for Innovation
What sets
Azure apart
*Information based on limited quantitative statistics available.
A special opportunity
for Altadena families
Right now, we’re offering 50% off Phase 1 Design Discovery, the complete process of turning your vision into approved, buildable plans. We’re also waiving the standard $250 deposit for families affected by the wildfire. These benefits are available through March 31 and can save you thousands of dollars.
If you’d like to learn more or get started, we’re here to help.
Your home is
closer than you think
Homes built for
how you live
Fire-Resistant,
Durable Construction
Light-gauge steel framing is non-combustible and meets California’s fire-safety standards. Every wall and roof is built to a 1-hour fire rating, helping your home stand strong for years to come.
70% Faster,
More Predictable
Factory construction accelerates your timeline dramatically. Precision manufacturing and indoor assembly eliminate the weather delays, material shortages, and labor issues that stretch out traditional projects.
Up to
30% Savings
Factory efficiency reduces construction costs while adhering to stringent building standards that meet or exceed every California code. This smarter method provides exceptional value for your home.
All-Electric
& Solar-Ready
Every Azure home is all-electric and pre-wired for seamless solar integration, including panels and battery storage. Lower utility costs from Day 1, with the option to add renewable energy whenever you’re ready.
Fully
Customizable
Recreate the home you loved or design something completely new. Your floor plan, your finishes, exactly how you want it. The result: a home that feels truly yours.
One Team,
Start to Finish
You have just one point of contact who will keep you updated and help manage everything from design through move-in. They’ll handle it all, so you can focus on what really matters: your family.
How we build
your home
Our Co-Founder and CEO, Ross Maguire, brings years of construction experience to a better way of building. Hear him share how Azure helps families like yours get home faster.
Find the home that
fits your life
These plans are designed for Altadena families who want to get home fast without sacrificing the details that matter. Pick one and customize it, or use it as a starting point for something completely your own.
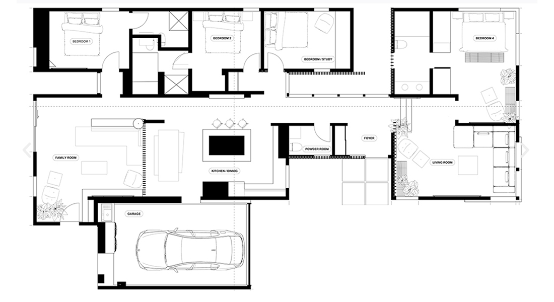
Pre-designed Floorplans
West
- 1,885 Sq Ft
- 3 Bedrooms
- 2.5 Baths
- Key features: Light, airy atrium & single-car garage



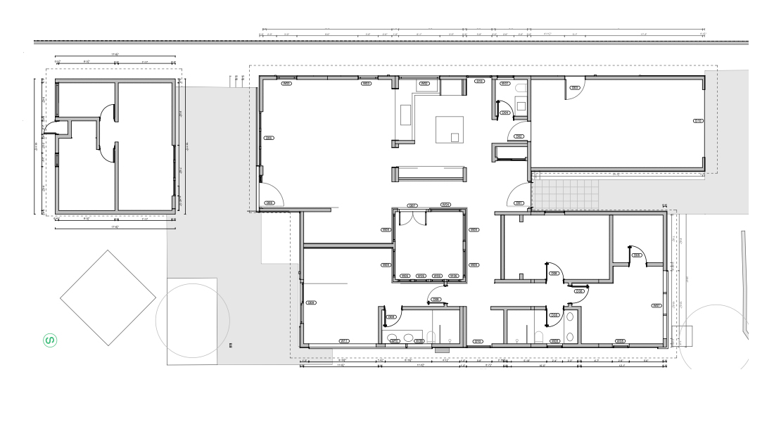
Coastal
- 2,400 Sq Ft
- 4 Bedrooms
- 3.5 Baths
- Key features: Large, open kitchen/dining area & single-car garage


Custom Floorplans
Personalized Builds
Design a home that’s fully custom and completely yours. Whether you’re starting fresh with new ideas or building on a vision you’ve always loved, our team will create a plan tailored to your lifestyle, your lot, and every detail that matters to you.
*Timelines begin after permit approval. Pricing includes foundation, utilities, and complete installation. Factory-built homes meet all California building codes, the same standards as traditional construction.
Real stories
from real families
These families trusted us to build their new homes, and here’s what they want you to know about their Azure experience.
Let’s get
you home
Tell us how we can help. Whether you need a quote, want to talk through your options, would like a factory tour, or just have questions, our team is here to help make the process as simple and quick as possible.
